中央人民政府
|
陕西省人民政府
|
汉中市人民政府
长者浏览
无障碍
网站支持IPv6
登录
|
退出
注册
|
繁体
网站首页
魅力勉县
政府信息公开
互动交流
政务服务
专题专栏
网站首页
魅力勉县
政府信息公开
互动交流
政务服务
专题专栏
当前位置:
首页
>
政府信息公开
>
规划计划
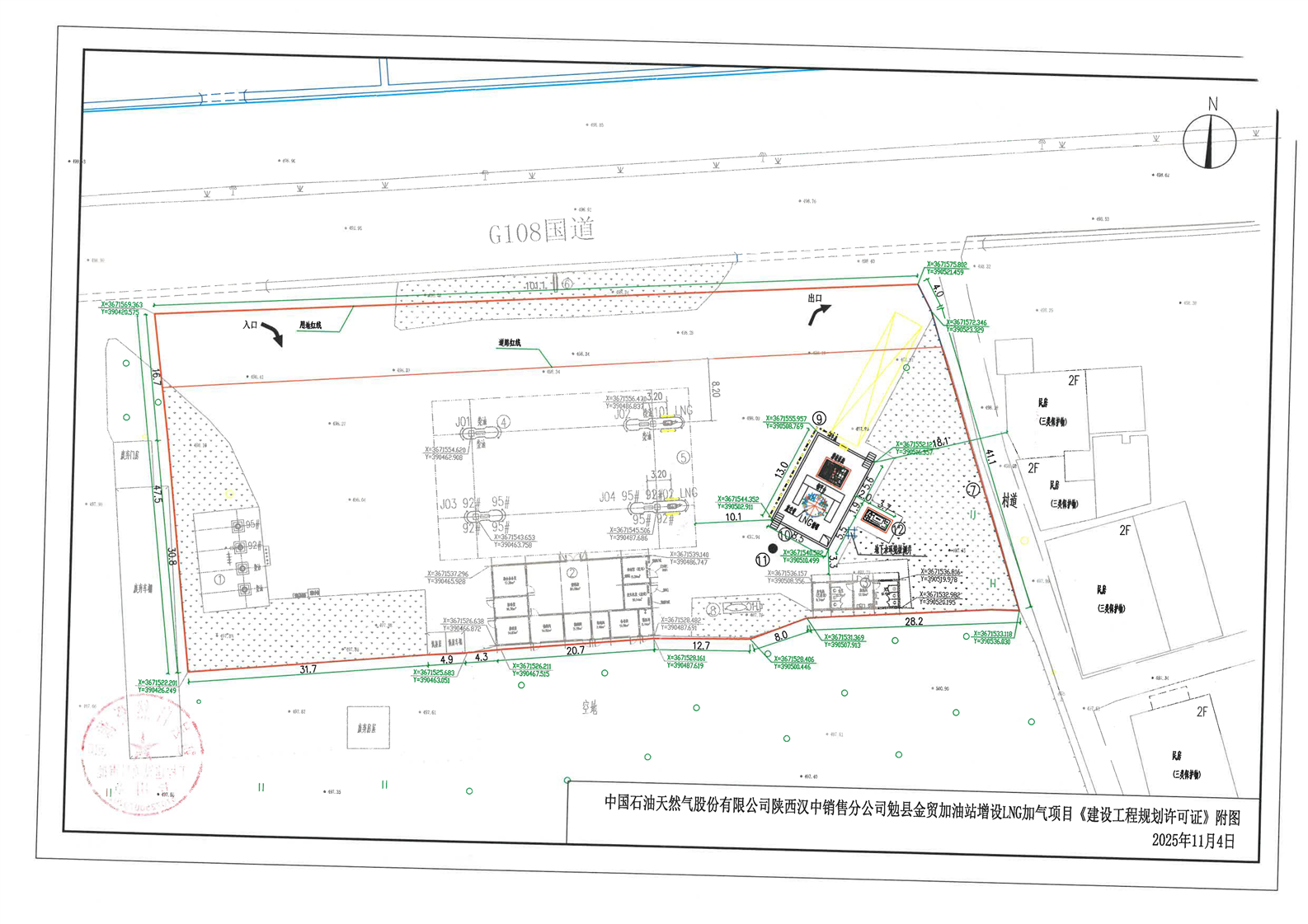
中国石油天然气股份有限公司陕西汉中销售分公司项目建设工程规划许可公示
索引号:
mxzrzyj000/2025-000151
发布日期:
2025年11月06日 09:57
来源:
勉县自然资源局
发文机构:
勉县自然资源局
内容概述:
访问量:
【字体:
大
中
小
】
转载
扫一扫在手机打开当前页